設計說明:
拾野,歸園,延續(xù)親情。本方案設計立意主要將自然的靈氣最大程度地納入空間。設計通過素雅的藝術裝飾,自然的色調,輕盈柔美的花藝和軟飾,營造出清新雅靜的環(huán)境氛圍,尋回田園 般恬淡,愜意的光景,讓空間的清幽自然去照應入內在的舒適與安恬。
設計亮點:
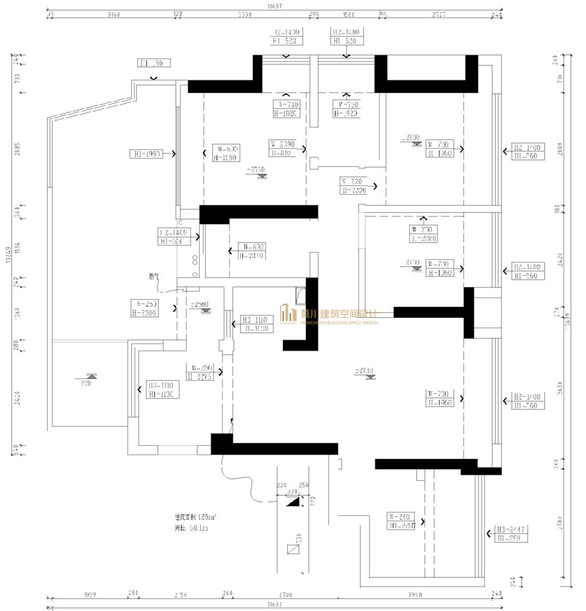
1.打通原有的入戶墻體,增加廚房的使用面積,把廚房改成開放式廚房,增加空間的互動。
2.將原有的陽臺給到餐廳功能區(qū)使用,大大的玻璃推拉門絲毫不減少采光。
3.過道嵌入式的柜子即增加空間儲物量,又不會打破空間完整性。
4.主衛(wèi)將原有墻體往上移之后,過道面積增大,增加了兩個衣柜。
項目地址:金翠園
戶型: 四室及以上
裝修風格: 日式風格
項目面積: 126㎡
設計費:¥50400
施工費:¥189000
原始戶型圖
平面方案圖
客廳
一個好的空間必定是富有生命氣息的,流動的空氣就是可觸碰的自由,材料體現的質感特性可以隱喻細微的情感呵護,方寸之間的美學營造,皆是你內在靈魂的自然流露。”整屋選用原木色家具,返璞歸真。
從客廳那一刻起,拾野歸園的詩意便悄聲彌漫。
藝術將本案空間定義為一個“看得見風景的房間”,通透開敞的空間,各處都洋溢著自然最美好的秘密和律動,置身其中能夠感受到如沐森林的清新感,盡享清風綠樹的柔情歌吟。客廳與開放式廚房設計,呈露出本真樸實又不乏清雅的審美感受,所有的裝點都是新鮮生動的,讓空間的沛然生機進一步釋放。











0755-83333299
莫川裝飾集團總部 :南山區(qū)華潤前海大廈A座23層
深圳福田設計院 :福田區(qū)卓越世紀中心4號樓506-507室
莫川蛇口設計院 :南山區(qū)蛇口招商局廣場24樓EF
深圳龍華設計院 :龍華區(qū)安宏基天曜廣場1棟A座12層E
深圳深灣設計院 :南山區(qū)后海片區(qū)卓越后海中心2509-2510
深圳寶安設計院 :深圳市寶安區(qū)前??婆d科學園1棟806
莫川香港設計院 :香港中環(huán)皇后大道中16-18號新世界大廈
莫川主材定制展廳:南山區(qū)高新北二道16號清溢光電大廈4樓
Copyright@ 2015-2017 深圳市莫川建筑空間設計有限公司 版權所有 網站地圖 粵ICP備17082150號 粵公網安備 44030402000770號