設計說明:
設計上主要采用了直聞淺胡桃木和金屬條做搭配,墻地面同方向線條讓空間在視覺上被拉長,顯得更加開闊,防大理石玻璃餐廳背景墻,巧妙地解決了餐桌靠墻清潔困難的尷尬,并將客餐廳串聯一起,視覺上空間更大更通透。沙發背景一整面硬包造型凸顯空間的時尚感,取景于自然。搭配整體暖色調的色彩,如潺潺流水般的天然線條紋理,暖暖的秋意呼之而出。
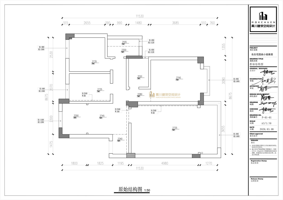
設計亮點:
1.小陽臺改成廚房使用,增加了廚房的面積。
2.主臥的主衛改成衣帽間,增加了衣柜的儲存空間。
項目地址:名仕花園
戶型: 三室
裝修風格: 北歐風格
項目面積: 87㎡
設計費:¥34800
施工費:¥156600










0755-83333299
莫川裝飾集團總部 :南山區華潤前海大廈A座23層
深圳福田設計院 :福田區卓越世紀中心4號樓506-507室
莫川蛇口設計院 :南山區蛇口招商局廣場24樓EF
深圳龍華設計院 :龍華區安宏基天曜廣場1棟A座12層E
深圳深灣設計院 :南山區后海片區卓越后海中心2509-2510
深圳寶安設計院 :深圳市寶安區前海科興科學園1棟806
莫川香港設計院 :香港中環皇后大道中16-18號新世界大廈14層
莫川主材定制展廳:南山區高新北二道16號清溢光電大廈4樓
Copyright@ 2015-2017 深圳市莫川建筑空間設計有限公司 版權所有 網站地圖 粵ICP備17082150號 粵公網安備 44030402000770號