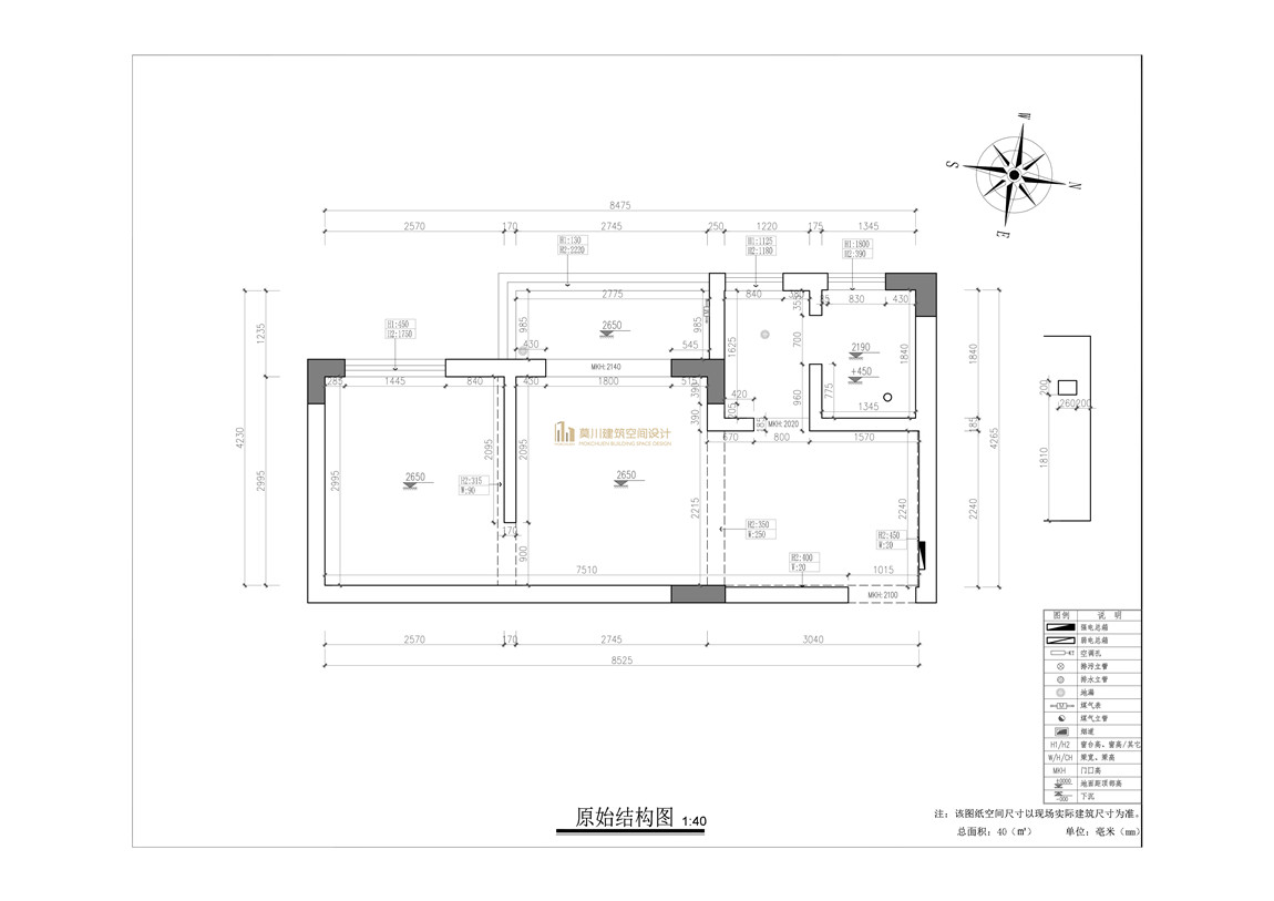
設計靈感:
本次設計以重收納,重居家為主要設計思想。以拓寬空間,重復利用空間,實現空間結構上的相互疊加為主要設計方向。打造一個簡約,明快,活潑溫馨的二人空間。
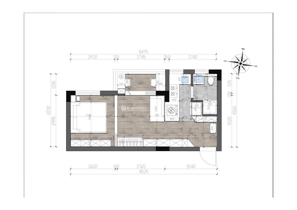
設計亮點:
1.原餐廳區(qū)域改為玄關,增加鞋帽柜收納
2.改動廚房墻體,將廚房做成半開放廚房,交替使用空間,且增加廚房客廳互動性
3.衛(wèi)生間改為長條形設計,做出了干濕分離,同時增加小型浴缸,淋浴泡澡兩不誤
4.將洗衣機藏于櫥柜之下,解放陽臺空間,將陽臺做成書房
5.將不需要采光的儲物區(qū)放在光線暗一點的內墻區(qū)域,將采光良好的區(qū)域給到活動區(qū)
6.全屋柜體分布均勻,每一個空間都有其專屬的儲物柜體,使家不在凌亂,還用戶一個干凈整潔的家
項目地址:紅樹家鄰
戶型: 一居室
裝修風格: 北歐風格
項目面積: 36㎡
設計費:¥30000
施工費:¥160000






0755-83333299
莫川裝飾集團總部 :南山區(qū)華潤前海大廈A座23層
深圳福田設計院 :福田區(qū)卓越世紀中心4號樓506-507室
莫川蛇口設計院 :南山區(qū)蛇口招商局廣場24樓EF
深圳龍華設計院 :龍華區(qū)安宏基天曜廣場1棟A座12層E
深圳深灣設計院 :南山區(qū)后海片區(qū)卓越后海中心2509-2510
深圳寶安設計院 :深圳市寶安區(qū)前??婆d科學園1棟806
莫川香港設計院 :香港中環(huán)皇后大道中16-18號新世界大廈
莫川主材定制展廳:南山區(qū)高新北二道16號清溢光電大廈4樓
Copyright@ 2015-2017 深圳市莫川建筑空間設計有限公司 版權所有 網站地圖 粵ICP備17082150號 粵公網安備 44030402000770號