設計說明:
大膽鮮亮的顏色,組合而成為一幅和諧而美好的畫面。時代更迭,我們更愿意留存住其中美好而迷人的世界。
當歲月流逝,所有的東西都消失殆盡的時候。唯有空中飄蕩的氣味還戀戀不散,讓往事歷歷在目。
設計亮點:
陽臺融入為客廳的一部分之后,客廳整體的空間感被放大,天花頂上古樸的木材仿若歲月的痕跡留存下的美好。大塊面鮮亮的色彩碰撞好似沖擊心靈。給人震撼。細細品味,回味無窮。
主臥與客廳風格一致,但更顯得沉穩(wěn),沉穩(wěn)的深藍色背景搭配著充滿野性森林味道的墻布,以及一些翠綠欲滴的植物。仿佛一瞬間置身于原始森林。被大自然清新而美好的氣息所包圍。
項目地址:金地梅隴鎮(zhèn)
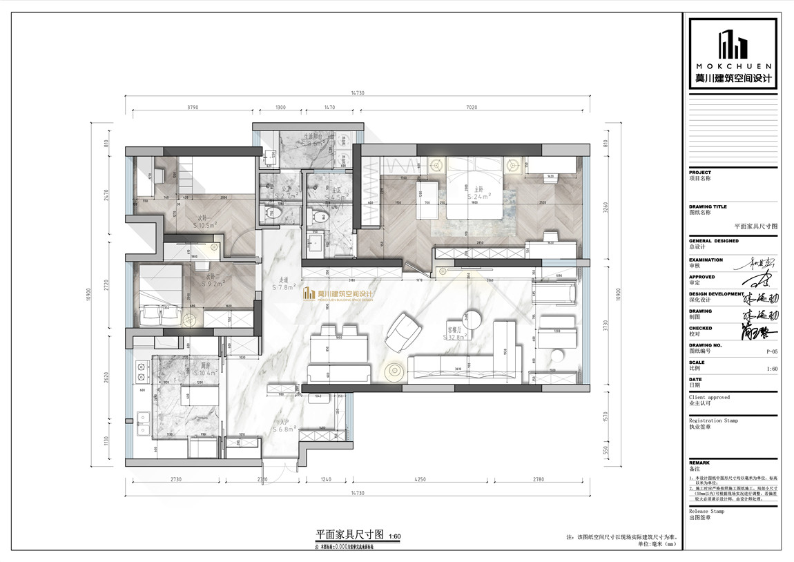
戶型: 三室
裝修風格: 其他
項目面積: 134㎡
設計費:¥53600
施工費:¥241200














0755-83333299
莫川裝飾集團總部 :南山區(qū)華潤前海大廈A座23層
深圳福田設計院 :福田區(qū)卓越世紀中心4號樓506-507室
莫川蛇口設計院 :南山區(qū)蛇口招商局廣場24樓EF
深圳龍華設計院 :龍華區(qū)安宏基天曜廣場1棟A座12層E
深圳深灣設計院 :南山區(qū)后海片區(qū)卓越后海中心2509-2510
深圳寶安設計院 :深圳市寶安區(qū)前海科興科學園1棟806
莫川香港設計院 :香港中環(huán)皇后大道中16-18號新世界大廈
莫川主材定制展廳:南山區(qū)高新北二道16號清溢光電大廈4樓
Copyright@ 2015-2017 深圳市莫川建筑空間設計有限公司 版權所有 網(wǎng)站地圖 粵ICP備17082150號 粵公網(wǎng)安備 44030402000770號