設計說明:
當我們結束了一天的疲憊回到家中,沏一壺茶坐在窗邊,感受著山間的清涼,無比愜意。每個人對住宅有著不同的理解,
但是人們對于家最本質的需求是不變的,那就是安心和放松。設計不是做造型貼材質,將六個面覆蓋完全就可以了。
設計是通過優(yōu)化空間動線以及視覺元素 ,讓人與室內有更和諧的交流。
項目地址:紫荊苑
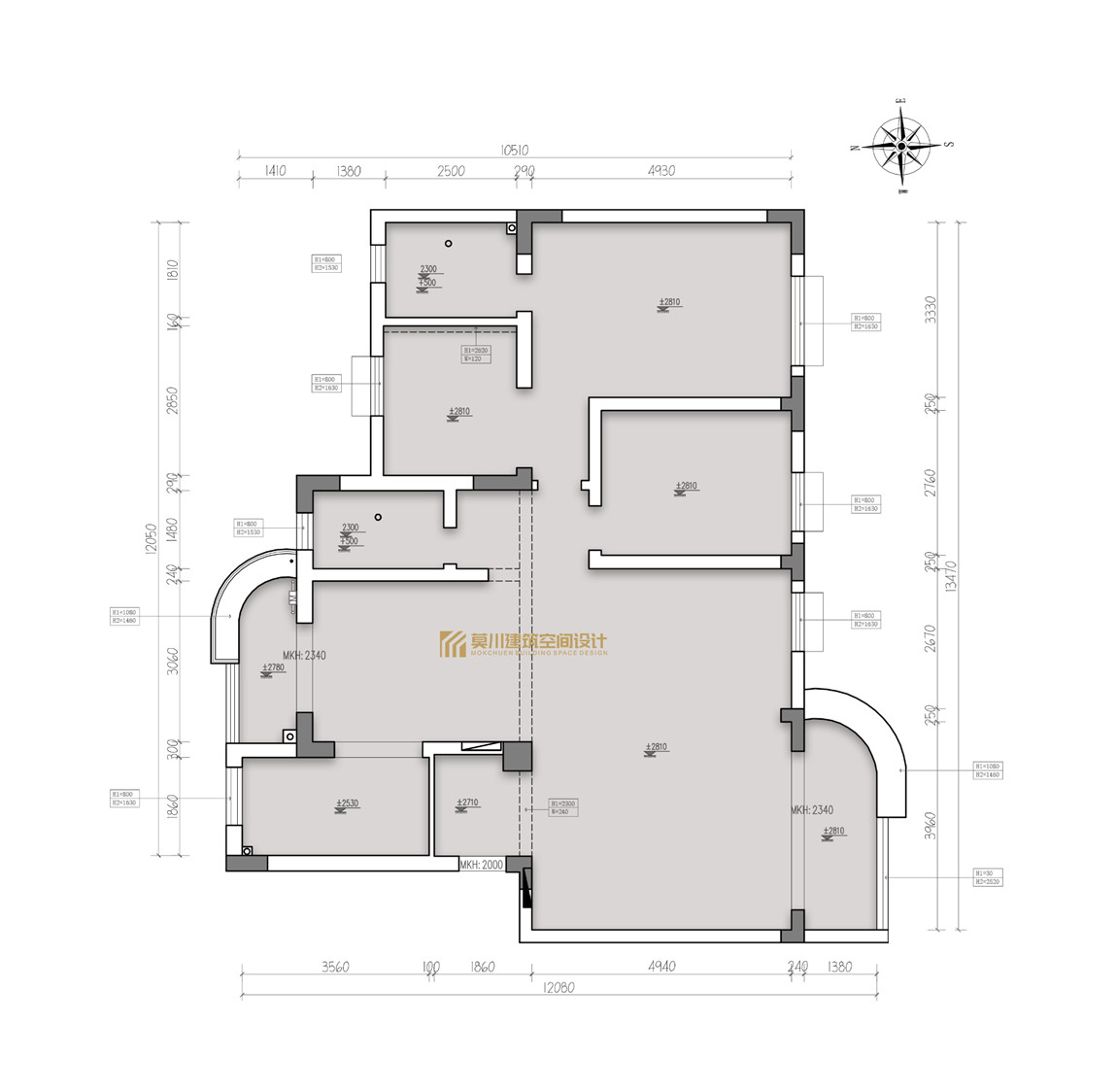
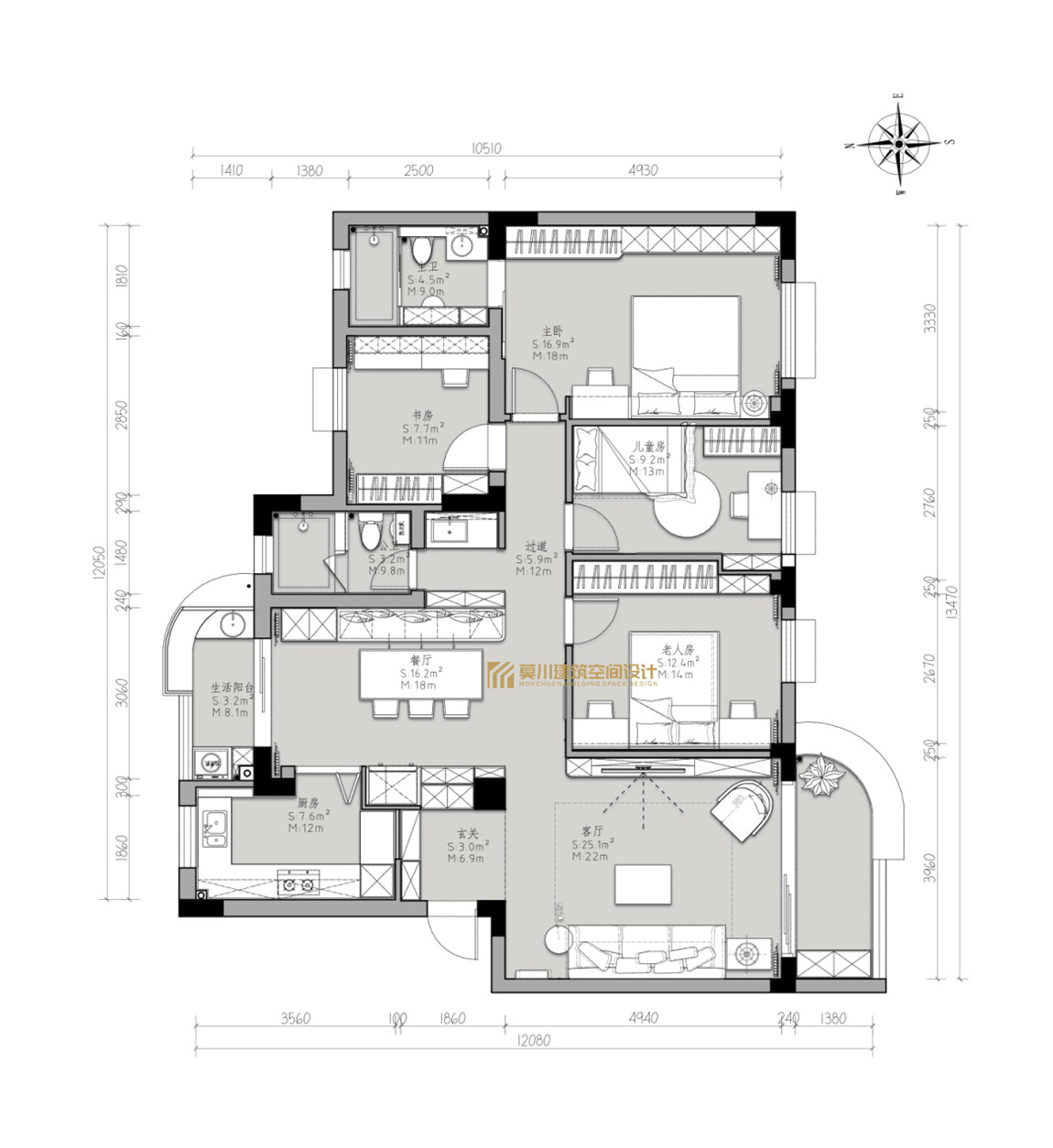
戶型: 四室及以上
裝修風格: 新中式
項目面積: 138㎡
設計費:¥55200
施工費:¥248400
















0755-83333299
莫川裝飾集團總部 :南山區(qū)華潤前海大廈A座23層
深圳福田設計院 :福田區(qū)卓越世紀中心4號樓506-507室
莫川蛇口設計院 :南山區(qū)蛇口招商局廣場24樓EF
深圳龍華設計院 :龍華區(qū)安宏基天曜廣場1棟A座12層E
深圳深灣設計院 :南山區(qū)后海片區(qū)卓越后海中心2509-2510
深圳寶安設計院 :深圳市寶安區(qū)前??婆d科學園1棟806
莫川香港設計院 :香港中環(huán)皇后大道中16-18號新世界大廈
莫川主材定制展廳:南山區(qū)高新北二道16號清溢光電大廈4樓
Copyright@ 2015-2017 深圳市莫川建筑空間設計有限公司 版權所有 網站地圖 粵ICP備17082150號 粵公網安備 44030402000770號