
項目地址:廣東省深圳市福田區(qū)
戶型: 二室
裝修風格: 法式
項目面積: 70㎡
設計費:¥21000
施工費:¥150000
1. 基本信息
項目地址:廣東省深圳市福田區(qū)
戶型: 2 室 1 廳
裝修風格:現代法式風格
項目面積:70平
常住人口:夫妻二人
2. 預 算
設計費:¥21000
施工費:¥150000(半包)
3. 設計說明
業(yè)主要一個獨立衣帽間,儲物要多,
風格上比較偏向法式風格,有點復古的感覺,
但又不想太過于復雜,軟裝上想搭配比較現代的家具
[原始結構圖]

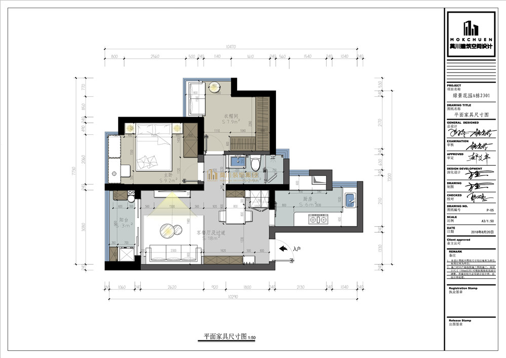
[平面布置圖]

4. 區(qū)域空間
[客廳]
墻面和天花不到的地方做一了圈頂線,通過這個石膏線來劃分上下乳膠漆顏色,
包括我們的玄關柜也是不到頂的設計,上面預留了一些空間.那么在視覺上會拉高空間的層高,不會顯得壓抑。

客廳的設計上,我們在電視背景墻上做了一個簡單的壁爐的造型,上下都有留空,下方鏤空的地方作為常用設備是放置,
整個天花走了一圈石膏線,一圈不到頂的造型線,軟裝選擇上我們加入了業(yè)主喜歡的粉色家具,
空間內用了小部分的黑色,形成一種強烈的對比。

[主臥]
整個臥室的色調就是業(yè)主喜歡的粉色系,搭配我們床頭的植物壁紙,整個空間比較大時尚又復古。

[衣帽間]

[衛(wèi)生間]

0755-83333299
莫川裝飾集團總部 :南山區(qū)華潤前海大廈A座23層
深圳福田設計院 :福田區(qū)卓越世紀中心4號樓506-507室
莫川蛇口設計院 :南山區(qū)蛇口招商局廣場24樓EF
深圳龍華設計院 :龍華區(qū)安宏基天曜廣場1棟A座12層E
深圳深灣設計院 :南山區(qū)后海片區(qū)卓越后海中心2509-2510
深圳寶安設計院 :深圳市寶安區(qū)前??婆d科學園1棟806
莫川香港設計院 :香港中環(huán)皇后大道中16-18號新世界大廈
莫川主材定制展廳:南山區(qū)高新北二道16號清溢光電大廈4樓
Copyright@ 2015-2017 深圳市莫川建筑空間設計有限公司 版權所有 網站地圖 粵ICP備17082150號 粵公網安備 44030402000770號