設計說明:
業主性格開朗,兩年內準備生小孩,想要明亮又溫馨感覺,喜歡木制的感覺,全程貫穿的是木色和白色的結合,通過照明以及戶型改造,讓空間明亮,開闊。全程打造的感覺是一種慢,舒適的居家環境。
設計亮點:
將原來處于衛生間和餐廳之間的廚房拆除后改到廚房于陽臺的拐角處,再把小陽臺納入廚房,使得廚房的空間方正,利用率高,冰箱也剛好可以嵌入到墻體中。廚房空間釋放出來厚,餐廳歸方,過道與餐廳空間融為一體,在滿足用餐空間的前提下,增加了一面墻的儲物柜。衛生間擴大后形成了獨立的洗漱區,浴室柜臺面長達一米,墻面還能空出掛壁掛洗衣機的空間,以及儲物柜的空間。
項目地址:香瑞園
戶型: 二室
裝修風格: 北歐風格
項目面積: 86㎡
設計費:¥34400
施工費:¥154800
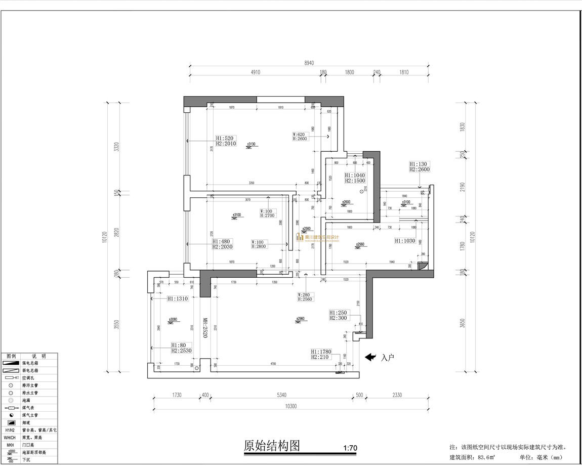
原始戶型圖
平面方案圖
客餐廳

主臥
次臥
衛生間
0755-83333299
莫川裝飾集團總部 :南山區華潤前海大廈A座23層
深圳福田設計院 :福田區卓越世紀中心4號樓506-507室
莫川蛇口設計院 :南山區蛇口招商局廣場24樓EF
深圳龍華設計院 :龍華區安宏基天曜廣場1棟A座12層E
深圳深灣設計院 :南山區后海片區卓越后海中心2509-2510
深圳寶安設計院 :深圳市寶安區前海科興科學園1棟806
莫川香港設計院 :香港中環皇后大道中16-18號新世界大廈14層
莫川主材定制展廳:南山區高新北二道16號清溢光電大廈4樓
Copyright@ 2015-2017 深圳市莫川建筑空間設計有限公司 版權所有 網站地圖 粵ICP備17082150號 粵公網安備 44030402000770號