設計說明:
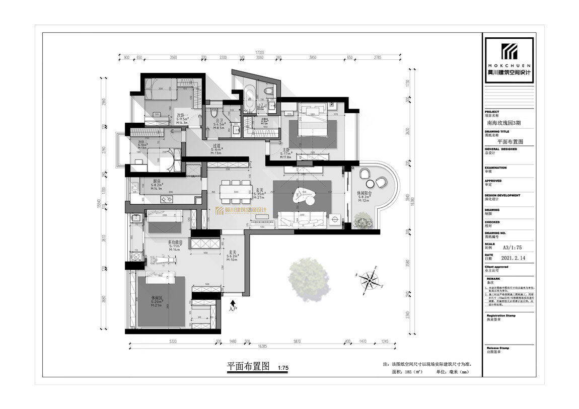
入戶左側兩個臥室改成一個開放式的多功能游戲會客區(qū),既能解決入戶光線問題,也能讓室內和入戶左側空間的高低差合理化。用最簡潔的手法來打造溫馨的居家環(huán)境。小孩房做拐角衣柜,最大化利用空間,且不會占用太多活動空間,給小孩子一個獨立且有學習氛圍的空間。
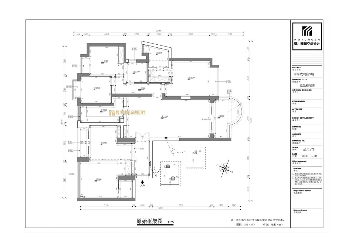
項目地址:南海玫瑰園
戶型: 四室及以上
裝修風格: 北歐風格
項目面積: 185㎡
設計費:¥74000
施工費:¥333000












0755-83333299
莫川裝飾集團總部 :南山區(qū)華潤前海大廈A座23層
深圳福田設計院 :福田區(qū)卓越世紀中心4號樓506-507室
莫川蛇口設計院 :南山區(qū)蛇口招商局廣場24樓EF
深圳龍華設計院 :龍華區(qū)安宏基天曜廣場1棟A座12層E
深圳深灣設計院 :南山區(qū)后海片區(qū)卓越后海中心2509-2510
深圳寶安設計院 :深圳市寶安區(qū)前??婆d科學園1棟806
莫川香港設計院 :香港中環(huán)皇后大道中16-18號新世界大廈
莫川主材定制展廳:南山區(qū)高新北二道16號清溢光電大廈4樓
Copyright@ 2015-2017 深圳市莫川建筑空間設計有限公司 版權所有 網(wǎng)站地圖 粵ICP備17082150號 粵公網(wǎng)安備 44030402000770號