設計主題:如沐初夏
設計亮點:半開放廚房的設計,聯(lián)動門+折疊窗增加法式元素
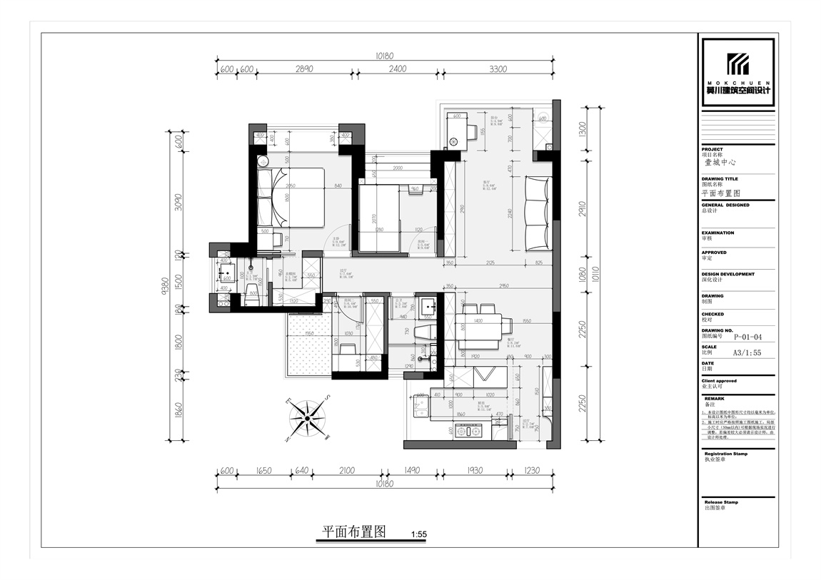
客廳整組書柜的設計,業(yè)主希望有足夠多的收納量來存放家里的書,兼顧顏值、易打理。書柜最底部一排預留了抽屜,考慮兩個寶寶的玩具存放,易拿放、整齊美觀,開放書架預留出讀書角供大小朋友在此親子共讀
主臥套房衣帽區(qū)功能的增設,哪個女孩子不想擁有一個獨立的衣帽區(qū)呢~壓縮了主衛(wèi)的面積,充分利用飄窗區(qū)域作為洗手盆
項目地址:壹成時代花園
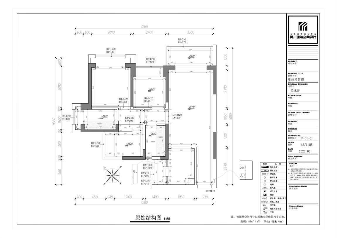
戶型: 三室
裝修風格: 法式
項目面積: 90㎡
設計費:¥25000
施工費:¥420000

平面方案圖
效果圖












0755-83333299
莫川裝飾集團總部 :南山區(qū)華潤前海大廈A座23層
深圳福田設計院 :福田區(qū)卓越世紀中心4號樓506-507室
莫川蛇口設計院 :南山區(qū)蛇口招商局廣場24樓EF
深圳龍華設計院 :龍華區(qū)安宏基天曜廣場1棟A座12層E
深圳深灣設計院 :南山區(qū)后海片區(qū)卓越后海中心2509-2510
深圳寶安設計院 :深圳市寶安區(qū)前??婆d科學園1棟806
莫川香港設計院 :香港中環(huán)皇后大道中16-18號新世界大廈
莫川主材定制展廳:南山區(qū)高新北二道16號清溢光電大廈4樓
Copyright@ 2015-2017 深圳市莫川建筑空間設計有限公司 版權所有 網(wǎng)站地圖 粵ICP備17082150號 粵公網(wǎng)安備 44030402000770號